石頭說話:埃及與基督教(3) Egypt and Christianity (3)
提起去埃及旅遊,很多人都會聯想到獅身人面像、金字塔、拉美西斯二世等等典型著名的旅遊景點和人物。埃及大約有一億人口,給人的印象是一個典型的伊斯蘭國家。再眾多人口中,伊斯蘭教徒佔大約90%,剩下的10%埃及人其實是基督徒。10%的人口相對其他90%的伊斯蘭教徒看似很少,但以絕對數字來說,一億人口的10%已經是一千萬人,亦即是埃及有大約一千萬為基督徒。不論百分比或基督徒數目,已經比很多國家或地方,例如香港多。其實基督教在埃及的發展已經有二千年的歷史,由公元第一世紀的耶穌時代已經有基督徒和教會在埃及立足,比伊斯蘭教早了六百多年。
今期要為大家介紹的是一個香港人非常陌生的埃及旅遊景點,但他是七個埃及的聯合國教科文組織世界遺產UNESCO World Heritage Site其中一個。景點的名字是阿布米那Abu Mena,相信這地方絕大部分的香港人也未聽聞過。
阿布米那位於地中海旁,下埃及的尼羅河三角洲範圍,在亞歷山大港Alexandria的西面,是埃及科普特教會Coptic Christian的核心,有龐大的教會建築群。在現代教會建築群旁邊,大約五分鐘的車程,有一個一千多年前的教堂遺址,1979年列入聯合國教科文組織世界遺產,2001年被列入瀕危世界遺產名錄。
阿布是父親的意思;米那是人名。「埃及的米那」Menas of Egypt是最著名的科普特聖人之一,這地方就是以他的名字來命名。
![]() |
![]() |
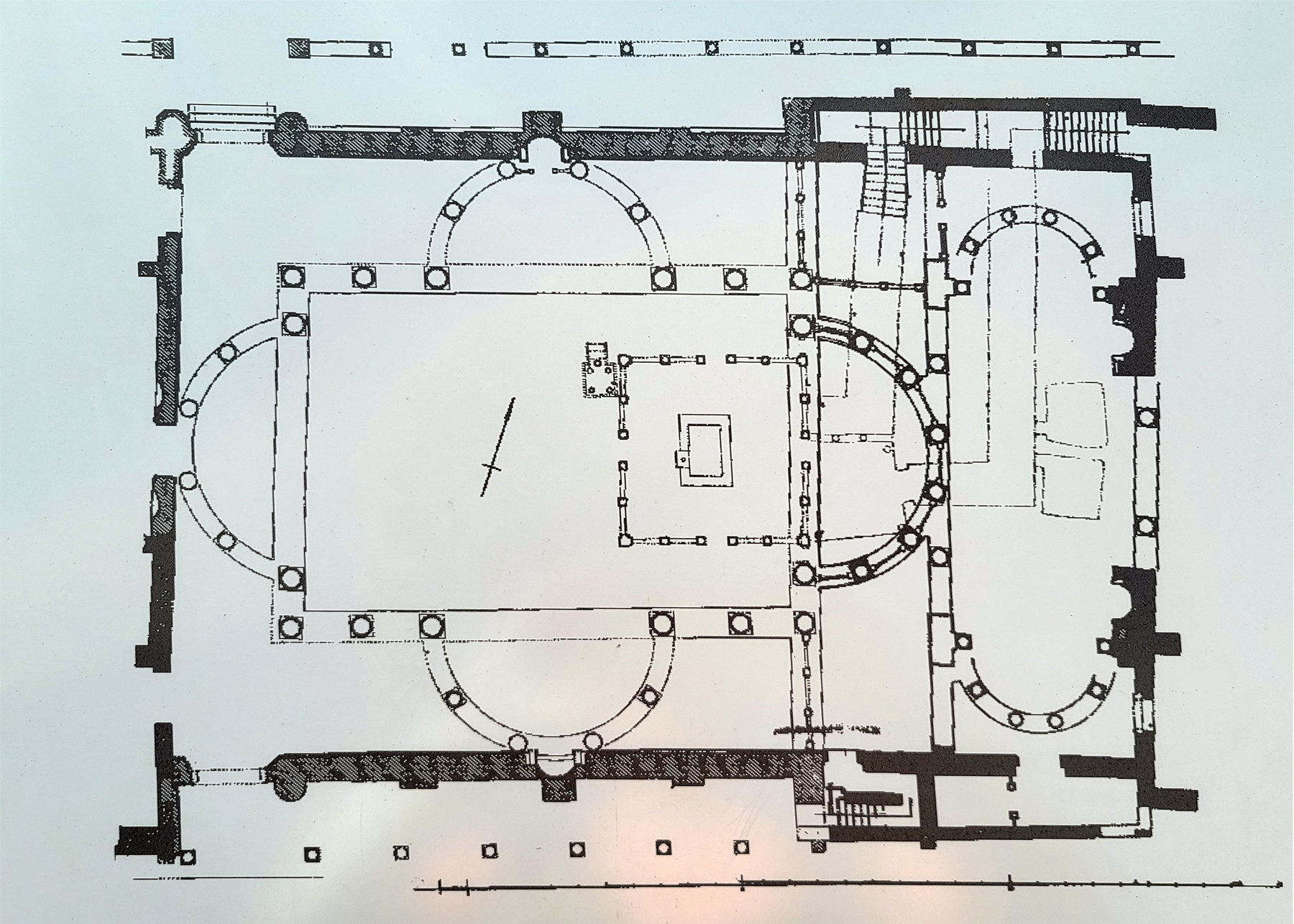
| 一千多年前的古阿布米那教堂遺址 |
![]() |
![]() |
| 古阿布米那教堂石柱 | 阿布米那教堂遺址平面圖 |
![]() |
![]() |
| 在古教堂遺址旁有一現代新建的小教堂 |
![]() |
![]() |
| 小教堂內部 | 小教堂祭壇 |
![]() |
![]() |
| 小教堂內紀念聖人米那的編織品 米那兩旁各有一隻駱駝 |
古教堂浸禮池 |
米那出生於公元三世紀後期,15歲成為羅馬帝國的士兵,職位甚高。由於他信仰基督教的緣故,被帝國逼害,羅馬皇帝下令處死米那。
根據埃及正教會的傳統,當逼害基督徒的時期結束後,東方教會的初期教父亞歷山大的亞他那修主教Athanasius of Alexandria在異像中看到一位天使向他顯現,命令他將米那的屍體裝在駱駝上,前往利比亞沙漠。在離亞歷山大港西面不遠的馬里特湖Lake Mariout的一個水井附近,駱駝停了下來,當地的基督徒將此視為上帝的徵兆,就將米那的屍體埋葬於駱駝停下的地方。所以代表米那的標記兩旁,各有一隻駱駝。
![]() |
![]() |
| 阿布米那現代教會建築群 |
![]() |
![]() |
| 阿布米那現代教會建築群入口 | 教堂建築群內的食物部和主類學部 |
![]() |
|
| 阿布米那大教堂 |
![]() |
![]() |
| 大教堂上方有第一個希臘字母阿拉法和 最後一個字母俄梅戛 「我是阿拉法,我是俄梅戛,我是首先的,我是末後的,我是初,我是終。」(啟示錄22:13) |
米那兩旁各有一隻駱駝 |
![]() |
![]() |
| 阿布米那大教堂內部 |
![]() |
![]() |
| 教堂拱頂內部繪畫了耶穌和12使徒並福音書的四位作者 |
![]() |
![]() |
| 人子-馬太 | 獅子-馬可 |
![]() |
![]() |
| 牛-路加 | 鷹-約翰 |